With an account you can save your favourite properties, add search profiles, be notified of changes, and more.
Rented: Renhagedis 18, 1704 VB Heerhugowaard
€1,550 /mo
€14.90/m2/mo
| Type of residence | Single-family house, house, terraced house |
|---|---|
| Acceptance | By 19 November 2025 |
| Liveable area | 104 m² |
|---|---|
| Status | Rented |
Description
***LET OP: u kunt alleen reageren via ons aanvraagformulier, zie onderstaande tekst voor de procedure***
TE HUUR deze keurige tussenwoning in Heerhugowaard in de wijk Butterhuizen. Deze volledig geïsoleerd woning heeft een tuingerichte woonkamer en aan de voorzijde een open keuken met inbouwapparatuur. De 1e verdieping heeft 3 ruime slaapkamers en een eenvoudige badkamer met douche, wastafel en 2e toilet. Via de vaste trap kom je op de open (niet afgewerkte) zolderkamer. Er ligt een laminaat vloer op iedere verdieping. Op het dak liggen 12 zonnepanelen dus dat betekent lage energielasten.
INDELING:
Begane grond: entree/hal, meterkast, trapopgang en toilet. Via de hal kom je in de tuingerichte woonkamer met laminaat vloer. Aan de voorzijde is de open keuken (2015) die voorzien is van een combimagnetron, koelkast, vriezer, 4-pits gaskookplaat met afzuigkap. Via de tuindeur in de woonkamer kom je in de achtertuin met achterin een houten berging.
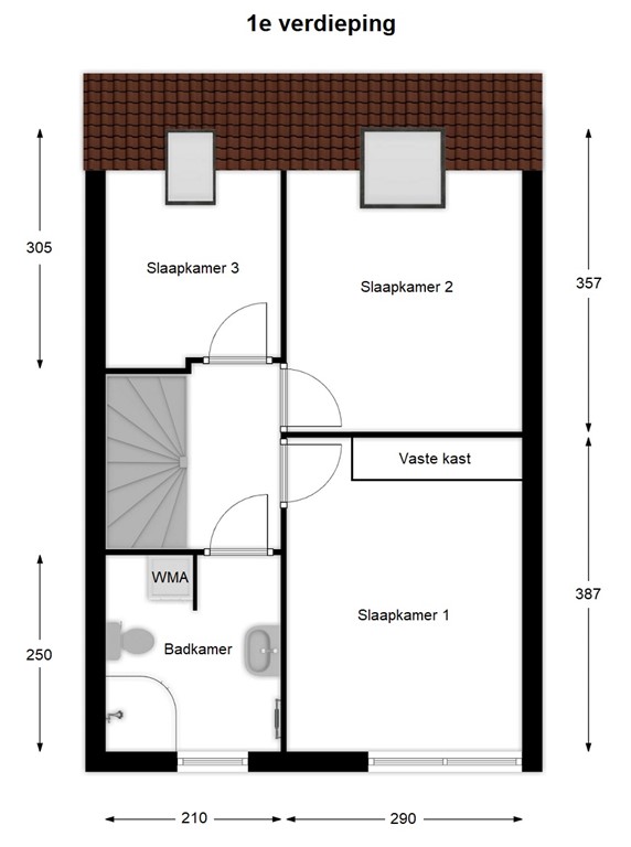
1e verdieping: overloop, aan de voorzijde slaapkamer 1 (2,90 x 3,87) met vaste kast. De eenvoudige badkamer (2,50 x 2,10) is voorzien van een douchehoek, 2e toilet, vaste wastafel, designradiator en wasmachine aansluiting. Aan de achterzijde is slaapkamer 2 (3,57 x 2,95) met knieschotten en groot Velux dakraam. Naast slaapkamer 2 is de kleine 3e slaapkamer (3,10 x 2,11).
2e verdieping: via de vaste trap is de 2e verdieping te bereiken. Hier is de open en onafgewerkte zolderkamer (4,00 x 5,13). Aan één zijde zijn er knieschotten aanwezig voor extra bergruimte. De cv-ketel, mechanische ventilatie en de omvormer voor de zonnepanelen bevinden zich boven de trapopgang.
De achtertuin is netjes aangelegd met sierbestrating en borders. De tuin heeft een afmeting van 10 x 5,30 meter en is gelegen op het noordwesten. Achter in de tuin staat een houten berging (2,50 x 2) met elektra. De tuin is te bereiken via de woning of de via de poort achterom. De voortuin is grotendeels bestraat en heeft borders. De gemeente heeft aan de voorzijde voor voldoende parkeergelegenheid gezorgd en in de nabijheid zijn er diverse kinderspeelplaatsen aanwezig.
Bijzonderheden:
- Huurprijs is exclusief energiekosten, kabel-tv en internet;
- Minimale huurperiode een jaar, daarna onbepaalde tijd;
- De borg is gelijk aan twee maanden huur;
- Niet roken en huisdieren in overleg;
- 12 zonnepanelen
***Procedure: U kunt zich inschrijven via ons aanvraagformulier wat u vindt op onze op onze website www.072wonen.nl in het menu bovenaan de homepage. Wij beoordelen dan of u in aanmerking komt, daarna volgt een uitnodiging voor een bezichtiging of een afwijzing.***
TE HUUR deze keurige tussenwoning in Heerhugowaard in de wijk Butterhuizen. Deze volledig geïsoleerd woning heeft een tuingerichte woonkamer en aan de voorzijde een open keuken met inbouwapparatuur. De 1e verdieping heeft 3 ruime slaapkamers en een eenvoudige badkamer met douche, wastafel en 2e toilet. Via de vaste trap kom je op de open (niet afgewerkte) zolderkamer. Er ligt een laminaat vloer op iedere verdieping. Op het dak liggen 12 zonnepanelen dus dat betekent lage energielasten.
INDELING:
Begane grond: entree/hal, meterkast, trapopgang en toilet. Via de hal kom je in de tuingerichte woonkamer met laminaat vloer. Aan de voorzijde is de open keuken (2015) die voorzien is van een combimagnetron, koelkast, vriezer, 4-pits gaskookplaat met afzuigkap. Via de tuindeur in de woonkamer kom je in de achtertuin met achterin een houten berging.
1e verdieping: overloop, aan de voorzijde slaapkamer 1 (2,90 x 3,87) met vaste kast. De eenvoudige badkamer (2,50 x 2,10) is voorzien van een douchehoek, 2e toilet, vaste wastafel, designradiator en wasmachine aansluiting. Aan de achterzijde is slaapkamer 2 (3,57 x 2,95) met knieschotten en groot Velux dakraam. Naast slaapkamer 2 is de kleine 3e slaapkamer (3,10 x 2,11).
2e verdieping: via de vaste trap is de 2e verdieping te bereiken. Hier is de open en onafgewerkte zolderkamer (4,00 x 5,13). Aan één zijde zijn er knieschotten aanwezig voor extra bergruimte. De cv-ketel, mechanische ventilatie en de omvormer voor de zonnepanelen bevinden zich boven de trapopgang.
De achtertuin is netjes aangelegd met sierbestrating en borders. De tuin heeft een afmeting van 10 x 5,30 meter en is gelegen op het noordwesten. Achter in de tuin staat een houten berging (2,50 x 2) met elektra. De tuin is te bereiken via de woning of de via de poort achterom. De voortuin is grotendeels bestraat en heeft borders. De gemeente heeft aan de voorzijde voor voldoende parkeergelegenheid gezorgd en in de nabijheid zijn er diverse kinderspeelplaatsen aanwezig.
Bijzonderheden:
- Huurprijs is exclusief energiekosten, kabel-tv en internet;
- Minimale huurperiode een jaar, daarna onbepaalde tijd;
- De borg is gelijk aan twee maanden huur;
- Niet roken en huisdieren in overleg;
- 12 zonnepanelen
***Procedure: U kunt zich inschrijven via ons aanvraagformulier wat u vindt op onze op onze website www.072wonen.nl in het menu bovenaan de homepage. Wij beoordelen dan of u in aanmerking komt, daarna volgt een uitnodiging voor een bezichtiging of een afwijzing.***
Features
| Offer | |
|---|---|
| Price | €1,550 per month |
| Service costs | €15 per month |
| Status | Rented |
| Acceptance | By 19 November 2025 |
| Offered since | 17 October 2025 |
| Last updated | 13 November 2025 |
| Construction | |
|---|---|
| Type of residence | Single-family house, house, terraced house |
| Type of construction | Existing estate |
| Year of construction | 1992 |
| Surfaces and content | |
|---|---|
| Floor Surface | 104 m² |
| Content | 315 m³ |
| External surface area storage rooms | 5 m² |
| Garden area | 53 m² |
| Layout | |
|---|---|
| Number of floors | 2 |
| Number of rooms | 4 (of which 3 bedrooms) |
| Outdoors | |
|---|---|
| Location | On a quiet street Residential area |
| Garden | |
|---|---|
| Type | Back yard |
| Condition | Normal |
| Garden 2 - Type | Front yard |
| Garden 2 - Condition | Normal |
| Energy consumption | |
|---|---|
| Energy certificate | B |
| Features | |
|---|---|
| Bathroom facilities | Shower Sink Toilet |
| Garden available | Yes |
| Has a storage room | Yes |
| Cadastral informations | |
|---|---|
| Cadastral designation | Heerhugowaard O 4418 |
| Range | Entire lot |