Description

***LET OP: u kunt alleen reageren via ons aanvraagformulier, zie onderstaande tekst voor de procedure***

TE HUUR  deze keurige tussenwoning in Heerhugowaard in de wijk Butterhuizen. Deze volledig geïsoleerd woning heeft een tuingerichte woonkamer en aan de voorzijde een open keuken met inbouwapparatuur. De 1e verdieping heeft 3 ruime slaapkamers en een eenvoudige badkamer met douche, wastafel en 2e toilet. Via de vaste trap kom je op de open (niet afgewerkte) zolderkamer. Er ligt een laminaat vloer op iedere verdieping. Op het dak liggen 12 zonnepanelen dus dat betekent lage energielasten. 

INDELING:
Begane grond: entree/hal, meterkast, trapopgang en toilet. Via de hal kom je in de tuingerichte woonkamer met laminaat vloer. Aan de voorzijde is de open keuken (2015) die voorzien is van een combimagnetron, koelkast, vriezer, 4-pits gaskookplaat met afzuigkap. Via de tuindeur in de woonkamer kom je in de achtertuin met achterin een houten berging.

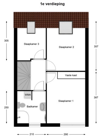
1e verdieping: overloop, aan de voorzijde slaapkamer 1 (2,90 x 3,87) met vaste kast. De eenvoudige badkamer (2,50 x 2,10) is voorzien van een douchehoek, 2e toilet, vaste wastafel, designradiator en wasmachine aansluiting. Aan de achterzijde is slaapkamer 2 (3,57 x 2,95) met knieschotten en groot Velux dakraam. Naast slaapkamer 2 is de kleine 3e slaapkamer (3,10 x 2,11).

2e verdieping: via de vaste trap is de 2e verdieping te bereiken. Hier is de open en onafgewerkte zolderkamer (4,00 x 5,13). Aan één zijde zijn er knieschotten aanwezig voor extra bergruimte. De cv-ketel, mechanische ventilatie en de omvormer voor de zonnepanelen bevinden zich boven de trapopgang.

De achtertuin is netjes aangelegd met sierbestrating en borders. De tuin heeft een afmeting van 10 x 5,30 meter en is gelegen op het noordwesten. Achter in de tuin staat een houten berging (2,50 x 2) met elektra. De tuin is te bereiken via de woning of de via de poort achterom. De voortuin is grotendeels bestraat en heeft borders. De gemeente heeft aan de voorzijde voor voldoende parkeergelegenheid gezorgd en in de nabijheid zijn er diverse kinderspeelplaatsen aanwezig.  

Bijzonderheden:
- Huurprijs is exclusief energiekosten, kabel-tv en internet;
- Minimale huurperiode een jaar, daarna onbepaalde tijd;
- De borg is gelijk aan twee maanden huur;
- Niet roken en huisdieren in overleg;
- 12 zonnepanelen

***Procedure: U kunt zich inschrijven via ons aanvraagformulier wat u vindt op onze op onze website www.072wonen.nl in het menu bovenaan de homepage. Wij beoordelen dan of u in aanmerking komt, daarna volgt een uitnodiging voor een bezichtiging of een afwijzing.***

Features